chester GUEST HOUSE
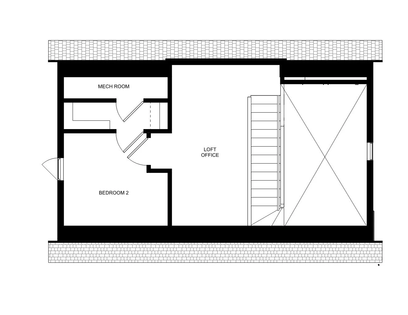
Situated in the intown Atlanta neighborhood of Reynoldstown, the homeowners needed more space for their expanding family. As the property is zoned Residential-Light-Commercial, the FAR calculations and zoning regulations allowed for a second residential unit on the property. The guest home contains 2 bedrooms, 1 bathroom, a loft office, full kitchen, laundry, and living/dining space within 800 sf and a 200 sf storage/work room.
Completion Date: November 2024
